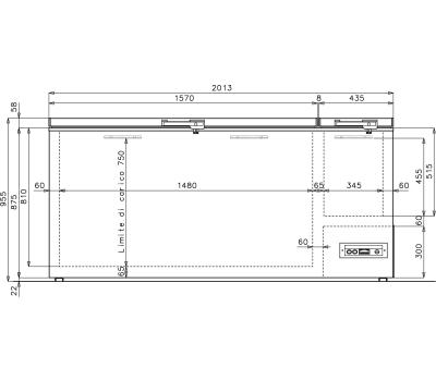
Horizontal freezer with flip lid, for class 5L1 storage of frozen products from -25°C to -18°C.
Static refrigeration, manual defrosting, 900 Litres.
Close with key, Stainless steel lid.
Documents
teknisk område
Brugervejledning
Commercial category
Frozen Food and Ice cream
Technical feature
Incorporated condensing unit
Manual defrost
Propane refrigerant gas (R290)
Static