Ice Cream and Frozen Food

eis 115.3

Ice Cream and Frozen Food

eis 115.3

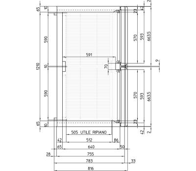
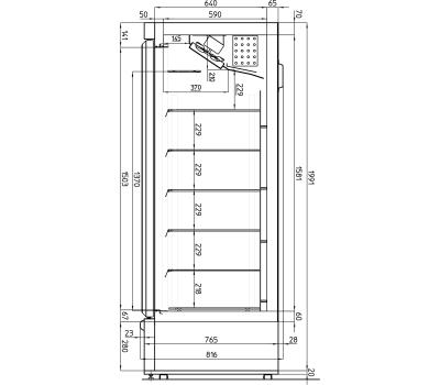
​Negative refrigerated cabinet EIS 115.3 with 2 hinged doors is formed by painted sheet metal and abs.

Ventilated refrigeration. Automatic defrosting. Temperature adjustable from -25° C/-18° C and can be constantly controlled and managed by means of a thermostat. The unit comes complete with internal Led light and 12 grilles.

Suitable for ice cream and frozen products.

Materiaalit
Frozen_food_and_ice_cream.jpg

Frozen Food and Ice cream

Hot_gas_defrosting.jpg

Hot-gas defrosting system

On_board_condenser.jpg

On board condenser

High_efficiency_fans.jpg

High efficiency fans

Ventilated.jpg

Ventilated

Electric controller.jpg

Electric controller

Propane_refrigerant_gas_R290.jpg

Propane refrigerant gas (R290)

Incorporated_condensing_unit.jpg

Incorporated condensing unit

Compressor-hermetic-reciprocating.jpg

Compressor hermetic reciprocating

Led_lighting.jpg

LED lighting